← Back to Projects

index_stat

Dwelling

Type:

Residential

Intervention Phase:

Schematic Design - Academic Project 

Surface : 

7.500 m²

Date: 

December 2013

Project Description:

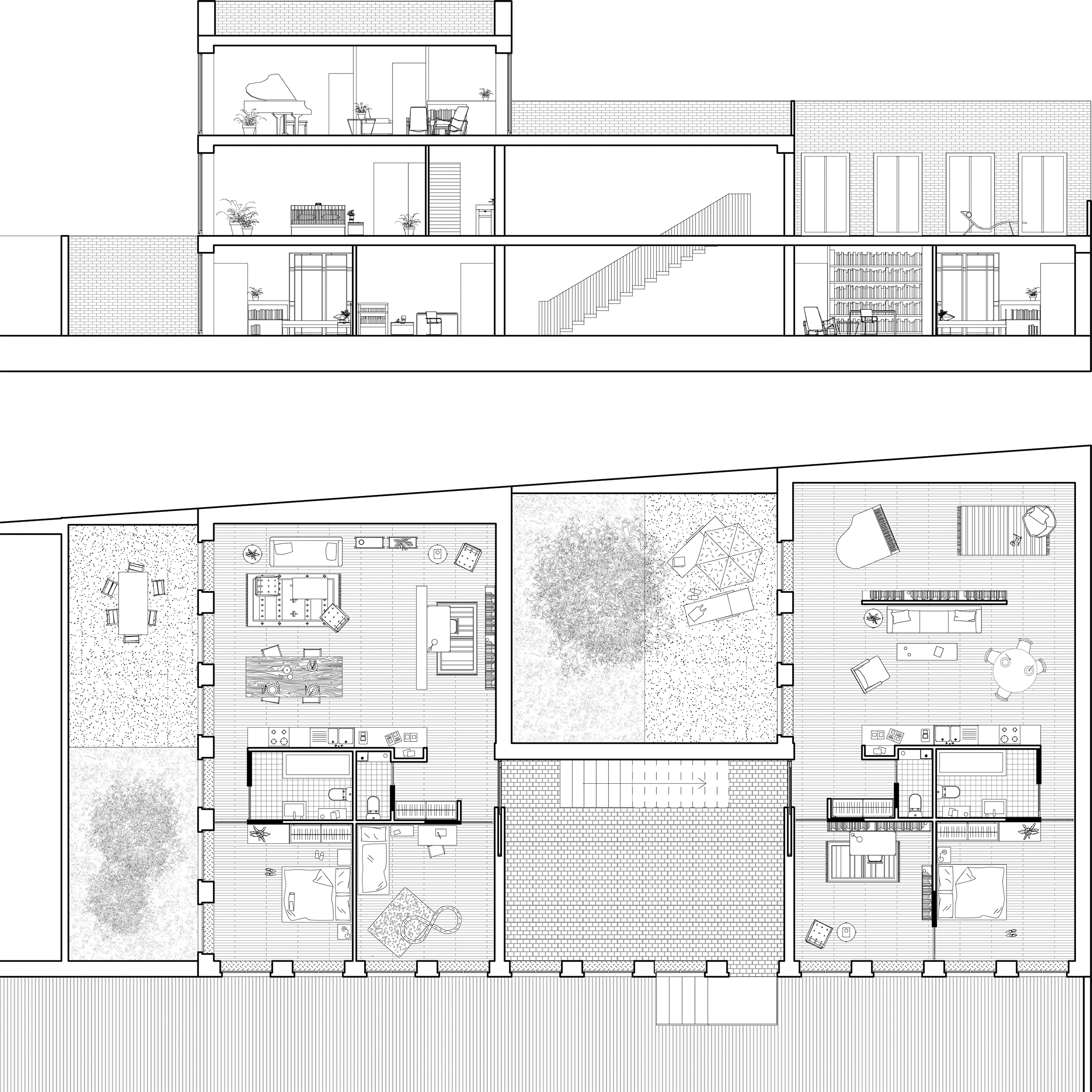
This dwelling operation takes place in the city of Aubervilliers, in the Parisian suburbs. It declines different housing typologies: a social housing unit, individual houses, and an intermediary housing unit.

The intermediary housing unit explored the design of a shared building, yet, making its users feel as in private and comfortable living units. Ground floor individual apartments are south mono-oriented, or north/south double oriented, and have individual terraces. At the upper level, more spacious duplex apartments have a more open living spaces.

Institution:

École Nationale Supérieure d'Architecture de Paris La Villette

Professor:

Vincen Cornu

Team:

Individual Work

02_visualisation

Global Axonometry

02_visualisation

Site Plan

04_elevation

Visualisation

06_model%20picture

Ground Floor Plan & Section

07_section

Visualisation

09_model%20picture

Upper Levels Plans

Eidgenössische Technische Hochschule Zürich

Visualisation

Eidgenössische Technische Hochschule Zürich

Detail Section & Elevation