← Back to Projects

index_stat

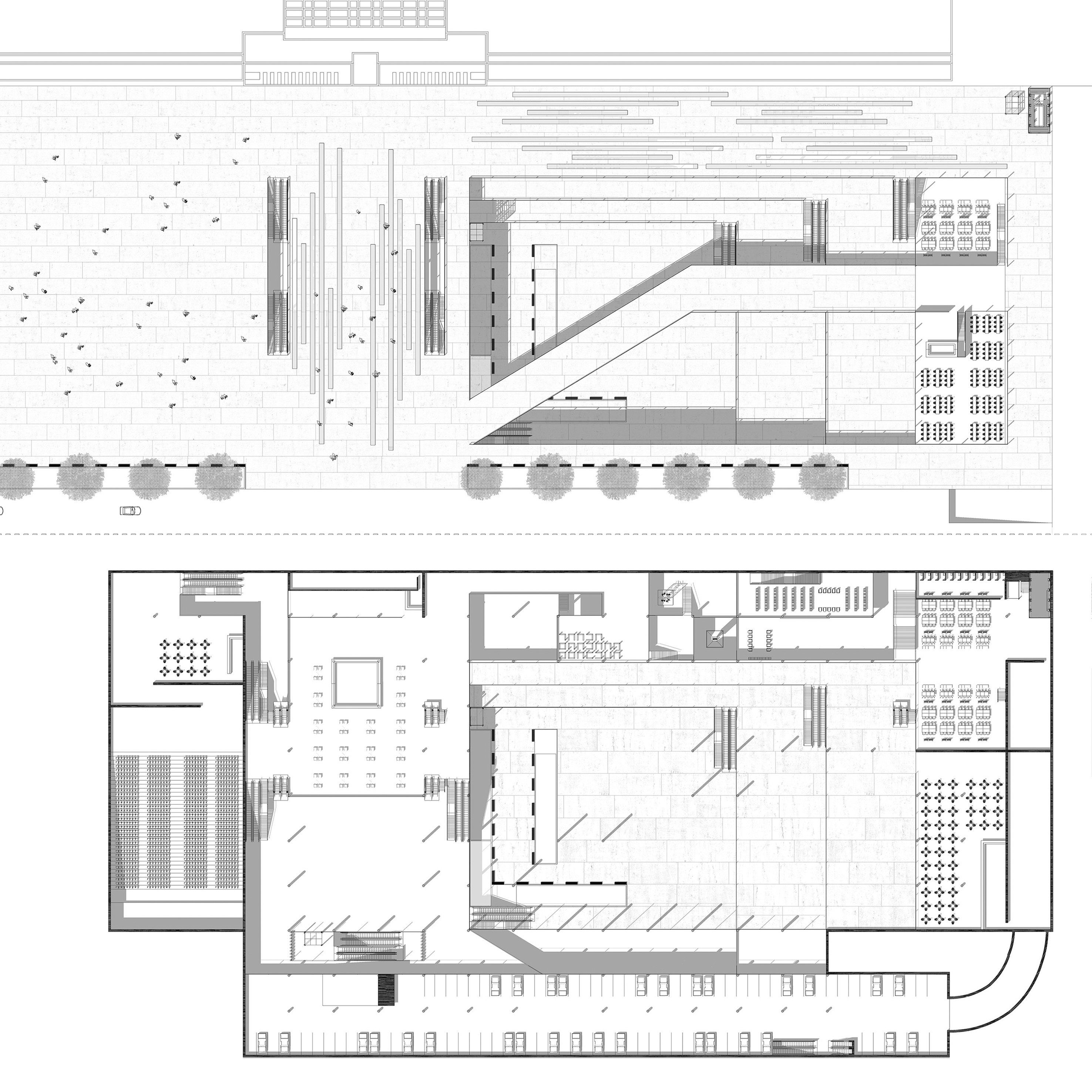
Infra Square

Type:

Transportation, Mixed Use Hub

Intervention Phase:

Schematic Design - Academic Project 

Surface : 

20.000 m²

Date: 

July 2015

Project Description:

A prospective mixed use proposal for le Bourget territory in the suburbs of Paris. 

Through programming and public infrastructure, the aim was to achieve social mixity between this territory’s working class inhabitants and the posh users of le Bourget business airport, by offering a connecting underground interface, which emphasizes the notion of shared use equipments and public space. 

The design focuses on the modularity of spaces, especially the public outdoor spaces that can host high end business or leisure events, but can also be used everyday by people living in le Bourget.

Institution:

École Nationale Supérieure d'Architecture de Paris La Villette

Professor:

Jim Njoo

Team:

Individual Work

02_visualisation

Exterior Visualisation

04_elevation

Floor Plans - Ground Floor & Below Ground 1

Eidgenössische Technische Hochschule Zürich

Longitudinal Sections

07_section

Interior Visualisations

Eidgenössische Technische Hochschule Zürich

Floor Plans - Below Ground 2 & 3

09_model%20picture

Cross Sections