← Back to Projects

index_stat

Thermal Bad

Type:

Cultural [Exhibition Space]

Intervention Phase:

Schematic Design - Academic Project 

Surface : 

4000m2

Date: 

July 2017

Project Description:

The history of bathing and the bath is incredibly rich, diverse, and complex. bathing as a culture has preserved an important place through the rapid changes that took place during the last century. The city of Zürich, in particular, maintains privileged relations with its water spots. It is the European city which has the largest number of urban bathing places in soft natural water. these are devices installed at lake or river shores called badis. However, this water culture revolves around a leisure oriented bathing design, and tends to forget the spiritual dimensions of the relationship to water. This issue is developed in the thesis paper Zürich : Sacra, Ludus, Communitas.

Standing against a consumerist vision and attitude towards water pleasures, this diploma project offers to Zürich metropolitans a new water practice in the form of a public thermal bath, where the typology of the Greco-Roman bath is reinterpreted, in order to offer Zürich a real water institution.

Institution:

École Nationale Supérieure d'Architecture de Paris La Villette

Professor:

Patrick Leitner, David Fagart

Team:

Individual Work

02_visualisation

Site Plan

03_floor%20plan

View of the Public Loggia from the Lake

04_elevation

Ground Floor Plan

06_model%20picture

Program Zoning

07_section

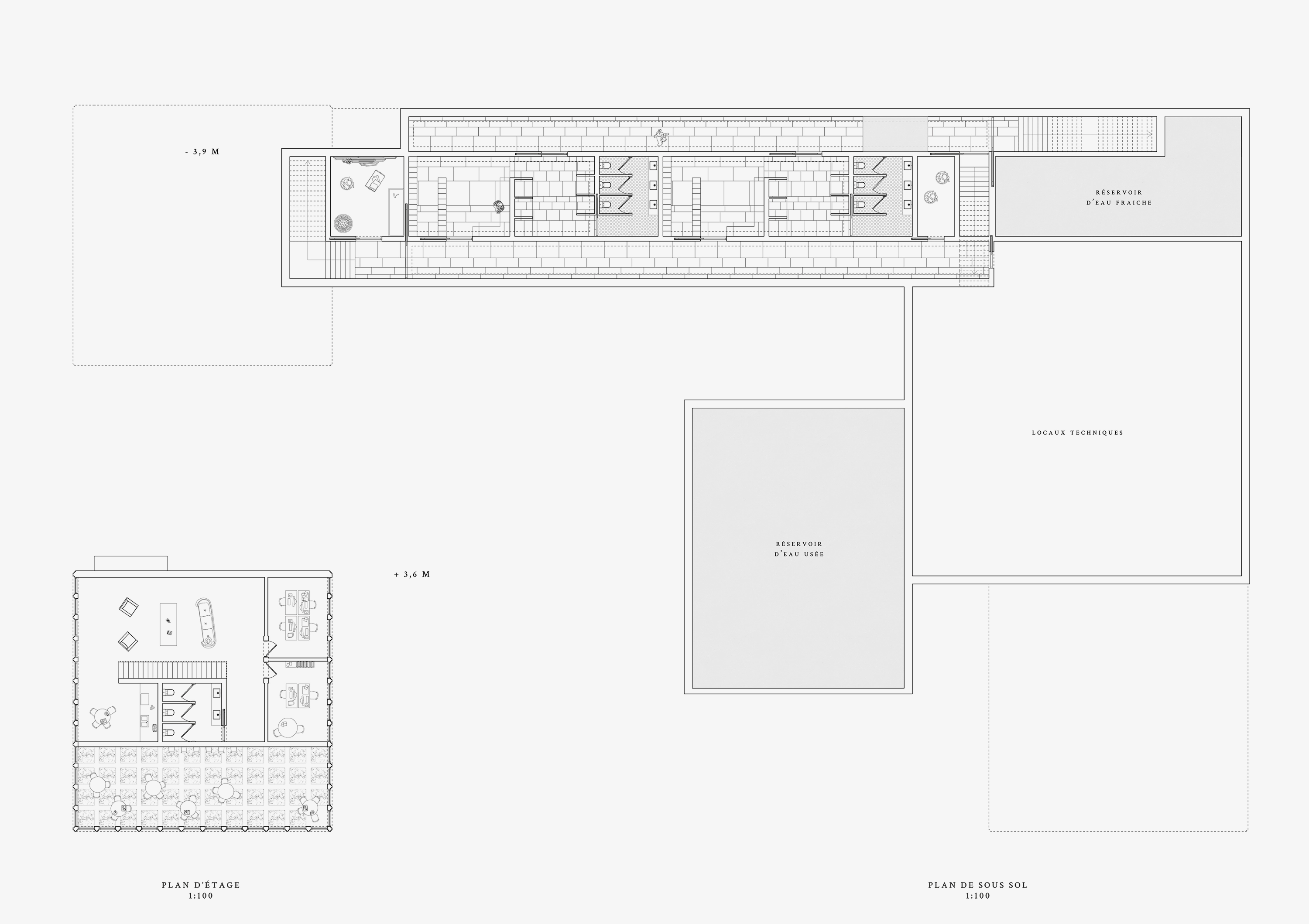
Lower Level Plan / Upper Level Plan

09_model%20picture

Elevations

Eidgenössische Technische Hochschule Zürich

Sections

Eidgenössische Technische Hochschule Zürich

View of the Café

Eidgenössische Technische Hochschule Zürich

Entrance Volume Façade

Eidgenössische Technische Hochschule Zürich

Observation Cabinet Façade

Eidgenössische Technische Hochschule Zürich

View of the External Pool and Public Space

Eidgenössische Technische Hochschule Zürich

Detail Section of the Inner Pool

Eidgenössische Technische Hochschule Zürich

View of the Linear Bath Sequence

Eidgenössische Technische Hochschule Zürich

Detail Section of the Sudatorium & the Resting Chamber

Eidgenössische Technische Hochschule Zürich

View of the Resting Chamber, overlooking Lake Zürich